
连云港桃色网址网站装饰工程有限公司
联系人:杨总
电话:0518-81069555
手机:15996140686
Q Q:949669399
微信:15996140686
网址:www.kingavison.com
地址:连云港市海州区郁洲南路88-10香溢•世纪花城西门北面第四家商铺
在寸土寸金的上海有一套属于自己的房子,是很多人的梦想,今天给大家介绍的这套超小户型来自节目《梦想改造家》,仅有38㎡,是典型的上海老公房,但是经过设计师的逆天改造之后却完全大变样。
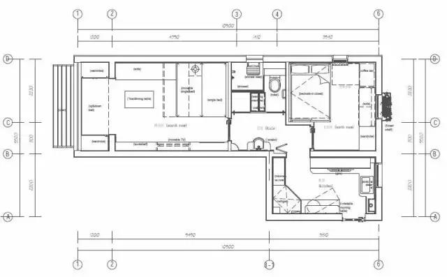
房屋现状
38平方的建筑面积、2.7米的常规层高,是老公房常见的户型。

▲ 原始户型图
问题一:祖孙三人共睡一塌 狭小的空间让“睡觉”成为了一家人的大问题,重达202斤的孙子要与爷爷、奶奶挤在仅1.35米宽的床上,每晚杨家人都要用板凳、椅子对床进行加长改造,然而即使横睡加拼椅子,加长成2米的“床”可供爷爷睡觉的空间仍只有0.3米。

▲ 1.35米的床就是用角落的椅子+泡沫垫拼接而成
问题二:浴室狭小
老房子位于5楼,由于水压不足,洗澡在这里也成为令人头疼的事儿。每人洗澡需要在厨房烧三锅水,每次都要把滚烫的开水从厨房端到卫生间。

▲ 洗浴区无热水,每次需要从厨房烧水
问题三:拥挤的厨房,仅容一人
入户的厨房大约只有2平米,灶台和洗手池占满了整个厨房台面,冰箱只能放在孙子与老人的房间,老太太每次烧饭,老先生想去帮忙都无处落脚。

▲ 约2平方的厨房
问题四:收纳空间小,没处放东西
家里的收纳全靠大卧室的衣柜,另外一个储藏空间就是厨房一排吊柜,每次老爷爷站在凳子上,老奶奶扶着他,就这样存放物品。

▲ 主卧衣柜是全家主要收纳区域
[ 改 造 后 ]
38平米老房改三房两厅,满足全家人基本需求的同时,给了更多生活的可能性。


厨房=大厨房+早餐台
厨房也应该是全家人可以一起烧饭、交流的地方,有人切水果,有人泡壶茶,说说工作……所以设计师做的第一个改动就是扩大厨房。

▲ 扩大后的厨房
设计师还在橱柜中做了一个通风透气的菜篮子,其实厨房部分蔬菜水果不用存放在冰箱,这样的柜子就很方便。

▲ 墙壁上装了一个计时器,让烹饪时间变得更精准

▲ 通风透气的菜篮子
厨房的早餐台可以转出来与橱柜链接,变成备餐区、操作台。定做的两把椅子都藏在吧台下面,简单的早餐都可以在这里解决。

▲ 可旋转的早餐台
客厅=餐厅+书房+老人房
设计师把老人和小夫妻的房间互换,靠墙定制了一排沙发,沙发和护墙板同样是用老地板改造而成,值得一提的是,对于小户型而言,家具必须兼顾储存功能,定制的沙发也一样。

▲ 老人房、孙子的房间、客厅、餐厅四合一空间

▲ 护墙板用老地板改造而成
茶几变餐桌,茶几通过旋转升高,几面翻开面积翻倍,嵌在柜子里的两把餐椅取出来,形成围合用餐空间,最多可容纳10人同时用餐。

▲ 茶几变餐桌
由于老人喜欢阅读,所以在客厅电视背景墙设计了一排书架。

▲ 客厅书架是可以愉悦精神的区域
孙子的升降床=晾衣架+沙发+书桌
孙子因为上大学,每周只回来住两天,所以设计师在阳台规划了一张升降床,当孩子回来的时候把床降下来即可,平时把床升上去完全不占91桃色APP污污污空间。

升降床停留在不同的高度可以有不同的用途,完全升上去的时候,可以打开隐藏挂衣钩,充当晾衣架;把它降到75公分的高度,翻出硬包盖板,可以充当一个多功能操作台:书桌、烫衣台……降低到45公分左右的高度,翻出软包翻板可以充当沙发使用。

移动的墙=孙子的独立空间+老人的独立空间
墙壁常规状态下是共享客厅、餐厅,而移动到老人床的另外一侧,空间规划瞬间发生改变。老人有了独立的睡眠空间,孙子在家的时候有了自己的小空间,沙发、茶几、电视机可以根据两代人的需求分隔在各自的房间。

▲ 可移动的墙

▲ 可移动的墙让老人房随时变为独立空间
设计师为老人设计的床拥有两种模式,第一种模式是双人床,两张单人床,为客厅留出更多的活动空间。另外一种模式是两张单人床,互不影响,中间留出过道,起夜的时候去卫生间非常方便。

▲ 台灯是从床头柜延伸而来
卫生间=干区+湿区+洗衣房
为了解决早晚洗漱时间的拥堵问题,设计师把卫浴空间分离,洗脸刷牙区、洗澡区、坐便器区三间分开,互相不影响。

▲ 卫生间分成独立的三个区域
马桶间和冲淋房之间设计了电控玻璃,保证两个空间同时拥有良好的采光,并且设置自动模式,当两扇门当中有任何一扇门是关闭状态,透明玻璃变成磨砂状态,保证使用者的隐私。

台盆柜就像一个百宝箱,小小空间考虑藏下一家五口人的牙杯牙具、毛巾,设计师设计了这样一个超大收纳功能的台盆柜。


主人房=卧室+衣帽间+起居室+咖吧+办公室
进门以后看到的是两边的衣柜,和一个双人沙发。而一个衣柜中隐藏了咖吧和办公桌。

▲ 隐藏的书桌满足工作需求
设计师把床抬高到1.2米,在床下面做了一个进入式的衣帽间。柜子里拉出来烫衣板、内衣收纳抽屉...

▲ 衣柜里同样还藏着上床的台阶
U型衣帽间藏在床下,两侧可以拉出来挂当季衣物,床掀起来就可以走到里面拿换季衣物。衣柜里同样还藏着上床的梯子,台阶下面可以储藏。
